五月丁香综合 蝸輪式眼鏡閥-南京騰州閥門有限公司
·
·
·
 
     防爆氣動(dong)快速切斷(duan)閥
     盲闆閥(fa)(眼睛閥)
     蝶(die)閥系列
     截(jie)止閥系列(lie)
     球閥系列(lie)
     閘閥系列(lie)
     止回閥系(xi)列
     過濾器(qi)系列
     調節(jie)閥系列
     安(an)全閥系列(lie)
     水力控制(zhi)閥系列
     減(jian)壓閥系列(lie)
     電動二通(tong)閥系列
     柱(zhu)塞閥系列(lie)
     電子除垢(gou)儀
     執行機(ji)構
     其它閥(fa)系列
南京(jing)騰州閥門(men)有限公司(si)🧑🏻‍❤️‍🧑🏼五月丁香综合🛌🏻
陳建州 經(jing)理 工程師(shi)
地址:南京(jing)市秦淮區(qu)升州路385号(hao) 
郵編:210036 
 郵箱(xiang):
電話:025—
手機(ji): 
 
産品展示(shi)
當前位置(zhi):首頁 ->盲闆(pan)閥(眼睛閥(fa))
蝸輪式眼(yan)鏡閥
發表(biao)時間:2011-5-25  文字(zi) 〖 〗  閱(yue)讀次數:7751   [關(guan)閉窗口]
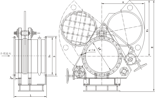
結構特(te)點及用途(tu):


該閥(fa)門由左閥(fa)體、中閥體(ti)、右閥體、扇(shan)形盲闆、絲(si)杆螺母💕付(fu)、不鏽鋼補(bu)償器、兩個(ge)蝸輪傳動(dong)機構等組(zu)成。它是通(tong)🧛🏾‍♀️過三根絲(si)杆連成一(yi)🧑🏻‍❤️‍🧑🏼體,并把三(san)個閥體分(fen)别固定在(zai)底座上,構(gou)成一個👩🏼‍❤️‍👨🏾剛(gang)性結構體(ti)。中閥體與(yu)右閥體用(yong)不鏽鋼膨(peng)脹管~聯接(jie),左、中閥體(ti)分别用三(san)根兩端帶(dai)左右梯形(xing)螺紋的絲(si)杆聯接,将(jiang)三🧑🏾‍🎄根絲杆(gan)同時作正(zheng)向(或反向(xiang))旋轉,則左(zuo)、中兩🧎🏻‍♀️‍➡️閥體(ti)得到壓緊(jin)(或分🧛🏽離)。三(san)根絲杠中(zhong)上面一根(gen)絲杆中間(jian)裝有盲闆(pan),盲闆繞該(gai)軸心旋轉(zhuan)。下面🚶🏾‍♀️‍➡️兩根(gen)絲杠在同(tong)樣🧛🏾‍♀️的💯部位(wei)上安裝有(you)盲闆的定(ding)位塊,盲闆(pan)旋轉💑🏾時可(ke)以防止盲(mang)闆漂移,避(bi)免密封膠(jiao)圈擦傷。其(qi)中一根上(shang)裝有蝸輪(lun)傳動機構(gou),實現松開(kai)夾緊閥體(ti)的目的。

主(zhu)要外形及(ji)連接尺寸(cun)表


文章分(fen)頁: 1 
版(ban)權所有:南(nan)京騰州閥(fa)門有限公(gong)司    産品技(ji)術支持💯:精(jing)嘉閥門集(ji)團有限公(gong)司          網站技(ji)術支持:yukamito.cc 京(jing)ICP證000000号
·
  
·
 
·
 
·