国产乱公伦媳在线播放 國标截止閥-南京騰州閥門有限公司
·
·
 
 
·
     防爆氣動(dong)快速切斷(duan)閥
     盲闆閥(fa)(眼睛閥)
     蝶(die)閥系列
     截(jie)止閥系列(lie)
     球閥系列(lie)
     閘閥系列(lie)
     止回閥系(xi)列
     過濾器(qi)系列
     調節(jie)閥系列
     安(an)全閥系列(lie)
     水力控制(zhi)閥系列
     減(jian)壓閥系列(lie)
     電動二通(tong)閥系列
     柱(zhu)塞閥系列(lie)
     電子除垢(gou)儀
     執行機(ji)構
     其它閥(fa)系列
南京(jing)👩🏿‍❤️‍💋‍👨🏽国产乱公伦媳在线播放👩🏿‍❤️‍💋‍👨🏽騰州閥門(men)有限公司(si)
陳建州 經(jing)理 工程師(shi)
地址:南京(jing)市秦淮區(qu)升州路385号(hao) 
郵編:210036 
 郵箱(xiang):
電話:025—
手機(ji): 
 
産品展示(shi)
當前位置(zhi):首頁 ->截止(zhi)閥系列
國(guo)标截止閥(fa)
發表時間(jian):2011-5-26  文字 〖 中(zhong) 〗  閱讀次(ci)數:4197   [關閉窗(chuang)口]

産品規(gui)範

設計規(gui)範

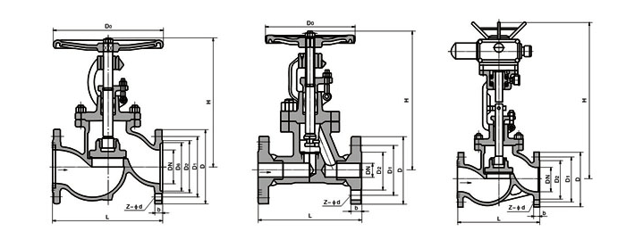
結構長(zhang)度

連接法(fa)蘭

試驗與(yu)檢驗 壓力(li)-溫度 産品(pin)标識 供貨(huo)規範
GB/T 12235 GB/T 12221 JB/T 79 JB/T 9092 GB 9131 GB/T 12220 JB/T 7928

公稱(cheng)壓力(Lb)

1.6

2.5 4.0 6.4 10.0 16.0
殼體(ti)強度試驗(yan) 2.4 3.8 6.0 9.6 15 24
上密封試(shi)驗 1.8 2.8 4.4 7.0 11 18
密封試(shi)驗 1.8 2.8 4.4 7.0 11 18
 

産品類(lei)型

适用介(jie)質

适用溫(wen)度
J41HY-C型
J941HY-C型
水(shui)、油品、蒸汽(qi) ≤425
≤450
J41W-P型
J941W-P型
硝酸(suan)類 ≤200
J41W-R型 酸酸(suan)類 ≤200
J41Y-I型
J941Y-I型
水(shui)、油品、蒸汽(qi) ≤550

産品類型(xing)

零件名稱(cheng)

閥體、閥蓋(gai) 閥杆 閥瓣(ban) 密封面 閥(fa)杆螺母 填(tian)料 緊固件(jian) 手輪
J41HY-C型
J941HY-C型(xing)
25.WCB 鉻不鏽鋼(gang) 2Cr1325 H:不鏽鋼
Y:钴(gu)基硬質合(he)金鋼
鋁青(qing)銅 柔性石(shi)墨 優質碳(tan)鋼 可鍛鑄(zhu)鐵
J41W-P型
J941W-P型
鉻(ge)鎳鈦鋼 鉻(ge)鎳鈦鋼 鉻(ge)鎳鈦鋼 鉻(ge)鎳鈦鋼 鋁(lü)青銅 柔性(xing)石墨 不鏽(xiu)鋼 可鍛鑄(zhu)鐵
J41W-R型 鉻鎳(nie)钼鈦鋼 鉻(ge)鎳钼鈦鋼(gang) 鉻鎳钼鈦(tai)鋼 鉻鎳钼(mu)鈦鋼 鋁青(qing)銅 柔性石(shi)墨 不鏽鋼(gang) 可鍛鑄鐵(tie)
J41Y-I型
J941Y-I型
鉻钼(mu)鋼 鉻钼鋼(gang) 合金鋼 钴(gu)基硬質合(he)金鋼 鋁青(qing)銅 柔性石(shi)墨 合金鋼(gang) 可鍛鑄鐵(tie)

公稱通經(jing)DN

主要外形(xing)尺寸和連(lian)接尺寸(mm) WT(kg)
L D D1 D2 B F Z-D H D0
J41HYB-16C J41W-16P J41W-16R J41Y-16I
10 130 90 60 40 14 2 4-14 198 120 4.7
15 130 95 65 45 16 2 4-14 218 120 5.2
20 150 105 75 55 16 2 4-14 258 140 7.1
25 160 115 85 65 16 2 4-14 275 160 7.4
32 180 135 100 78 18 2 4-18 280 180 8.5
40 200 145 110 85 18 3 4-18 330 200 12.5
50 230 160 125 100 18 3 4-18 350 240 20
65 290 180 145 120 18 3 4-18 400 280 25
80 310 195 160 135 20 3 8-18 355 280 35
100 350 215 180 155 22 3 8-18 415 320 50
125 400 245 210 185 24 3 8-18 460 360 75
150 480 280 240 210 24 3 8-23 510 400 100
200 600 335 295 265 26 3 11-22 710 400 210
250 730 405 355 320 30 3 11-22 786 450 446
300 850 460 410 375 30 3 11-22 925 500 648

文(wen)章分頁: 1 
版(ban)權所有:南(nan)京騰州閥(fa)門有限公(gong)司    産品技(ji)術支持:精(jing)嘉閥門集(ji)團有限公(gong)司          網站技(ji)術支持:yukamito.cc 京(jing)ICP證000000号
·