|
|
|
|
~亚洲熟妇AV乱码在线观看㊙️ 南京(jing)騰州(zhou)閥門(men)有限(xian)公司(si)
陳建(jian)州 經(jing)理 工(gong)程師(shi)
地址(zhi):南京(jing)市秦(qin)淮區(qu)升州(zhou)路385号(hao)
郵編(bian):210036
電話(hua):025—
手機(ji):
|
|
|
産品(pin)展示(shi)
|
當前(qian)位置(zhi): 首頁(ye)
->閘閥(fa)系列(lie)
|
|
|
氣動(dong)閘閥(fa)
|
|
發表(biao)時間(jian):2011-5-26 文字(zi) 〖 大
中(zhong)
小
〗 閱(yue)讀次(ci)數:4878 [關(guan)閉窗(chuang)口]
|
|
|
|
|
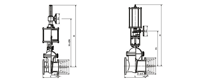
公(gong)稱通(tong)經DN
|
主(zhu)要外(wai)形尺(chi)寸和(he)連接(jie)尺寸(cun)(mm)
|
WT(kg)
|
|
L
|
D
|
D1
|
D2
|
B
|
Z-ØD
|
H
|
H1
|
DO
|
|
CZ6s40H-16C CZ6s40H-16P CZ6s40H-16R
|
|
50
|
250
|
160
|
125
|
100
|
16
|
4-φ18
|
950
|
570
|
180
|
36
|
|
65
|
270
|
180
|
145
|
120
|
18
|
4-φ18
|
1050
|
596
|
180
|
53
|
|
80
|
280
|
195
|
160
|
135
|
20
|
8-φ18
|
1080
|
635
|
200
|
72
|
|
100
|
300
|
215
|
180
|
155
|
20
|
8-φ18
|
1145
|
645
|
250
|
90
|
|
125
|
325
|
245
|
210
|
185
|
22
|
8-φ18
|
1210
|
685
|
250
|
120
|
|
150
|
350
|
280
|
240
|
210
|
24
|
8-φ18
|
1300
|
720
|
320
|
132
|
|
200
|
400
|
355
|
295
|
265
|
26
|
12-φ23
|
1660
|
940
|
400
|
258
|
|
250
|
450
|
405
|
355
|
320
|
30
|
12-φ25
|
1790
|
1020
|
400
|
297
|
|
300
|
500
|
460
|
410
|
375
|
30
|
12-φ25
|
1990
|
1150
|
450
|
420
|
|
350
|
550
|
520
|
470
|
435
|
34
|
16-φ25
|
2090
|
1170
|
450
|
558
|
|
400
|
600
|
580
|
525
|
485
|
36
|
16-φ30
|
2290
|
1325
|
500
|
840
|
|
450
|
650
|
640
|
585
|
545
|
40
|
20-φ30
|
2485
|
1465
|
500
|
1110
|
|
500
|
700
|
705
|
650
|
608
|
44
|
20-φ34
|
2640
|
1590
|
550
|
1380
|
|
600
|
800
|
840
|
770
|
718
|
48
|
20-φ41
|
2940
|
1720
|
550
|
1620
|
|
700
|
900
|
910
|
840
|
788
|
50
|
24-φ41
|
3450
|
1960
|
600
|
1966
|
|
800
|
1000
|
1020
|
950
|
898
|
52
|
24-φ41
|
3650
|
2190
|
600
|
2282
|
|
900
|
1100
|
1120
|
1050
|
998
|
54
|
28-φ41
|
3815
|
2400
|
800
|
2495
|
|
1000
|
1200
|
1255
|
1170
|
1110
|
56
|
28-φ48
|
4000
|
2650
|
800
|
2760
|
|
公稱(cheng)通經(jing)DN
|
主要(yao)外形(xing)尺寸(cun)和連(lian)接尺(chi)寸(mm)
|
WT(kg)
|
|
L
|
D
|
D1
|
D2
|
B
|
Z-ØD
|
H
|
H1
|
DO
|
|
CZ6s40H-25C CZ6s40H-25P CZ6s40H-25R
|
|
50
|
250
|
160
|
125
|
100
|
20
|
4-φ18
|
950
|
570
|
180
|
38
|
|
65
|
270
|
180
|
145
|
120
|
22
|
8-φ18
|
1050
|
596
|
180
|
55
|
|
80
|
280
|
195
|
160
|
135
|
22
|
8-φ18
|
1080
|
635
|
200
|
76
|
|
100
|
300
|
230
|
190
|
160
|
24
|
8-φ23
|
1145
|
645
|
250
|
94
|
|
125
|
325
|
270
|
220
|
188
|
28
|
8-φ25
|
1210
|
685
|
250
|
126
|
|
150
|
350
|
300
|
250
|
218
|
30
|
8-φ25
|
1300
|
720
|
320
|
136
|
|
200
|
400
|
360
|
320
|
278
|
34
|
12-φ25
|
1660
|
940
|
400
|
265
|
|
250
|
450
|
425
|
370
|
332
|
36
|
12-φ30
|
1790
|
1020
|
400
|
300
|
|
300
|
500
|
485
|
430
|
390
|
50
|
16-φ30
|
1990
|
1150
|
450
|
436
|
|
350
|
550
|
550
|
490
|
448
|
44
|
16-φ34
|
2090
|
1170
|
450
|
580
|
|
400
|
600
|
610
|
550
|
505
|
48
|
16-φ34
|
2290
|
1325
|
500
|
860
|
|
450
|
650
|
660
|
600
|
555
|
50
|
20-φ34
|
2485
|
1465
|
500
|
1260
|
|
500
|
700
|
730
|
660
|
610
|
52
|
20-φ41
|
2640
|
1590
|
550
|
1420
|
|
600
|
800
|
840
|
770
|
718
|
56
|
20-φ41
|
2940
|
1720
|
550
|
1710
|
|
700
|
900
|
955
|
875
|
815
|
60
|
24-φ48
|
3450
|
1960
|
600
|
2105
|
|
800
|
1000
|
1070
|
990
|
930
|
64
|
24-φ48
|
3650
|
2190
|
600
|
2310
|
|
900
|
1100
|
1180
|
1090
|
1025
|
66
|
28-φ54
|
3815
|
2400
|
800
|
2620
|
|
1000
|
1200
|
1305
|
1210
|
1140
|
68
|
28-φ58
|
4000
|
2650
|
800
|
2960
|
|
公(gong)稱通(tong)經DN
|
主(zhu)要外(wai)形尺(chi)寸和(he)連接(jie)尺寸(cun)(mm)
|
WT(kg)
|
|
L
|
D
|
D1
|
D2
|
D6
|
B
|
Z-D
|
H
|
H1
|
DO
|
|
CZ6s40H-40 CZ6s40H-40P CZ6s40H-40R
|
|
50
|
250
|
160
|
125
|
100
|
88
|
20
|
4-φ18
|
950
|
570
|
200
|
42
|
|
65
|
280
|
180
|
145
|
120
|
110
|
22
|
8-φ18
|
1050
|
596
|
200
|
68
|
|
80
|
320
|
195
|
160
|
135
|
121
|
22
|
8-φ18
|
1080
|
635
|
250
|
84
|
|
100
|
350
|
230
|
190
|
160
|
150
|
24
|
8-φ23
|
1145
|
645
|
320
|
102
|
|
125
|
400
|
270
|
220
|
188
|
176
|
28
|
8-φ25
|
1210
|
685
|
320
|
135
|
|
150
|
450
|
300
|
250
|
218
|
204
|
30
|
8-φ25
|
1300
|
720
|
400
|
156
|
|
200
|
550
|
375
|
320
|
282
|
260
|
38
|
12-φ30
|
1660
|
940
|
400
|
276
|
|
250
|
650
|
445
|
385
|
345
|
313
|
42
|
12-φ34
|
1790
|
1020
|
450
|
306
|
|
300
|
750
|
510
|
450
|
408
|
364
|
46
|
16-φ34
|
1990
|
1150
|
450
|
510
|
|
350
|
850
|
570
|
510
|
465
|
422
|
52
|
16-φ34
|
2090
|
1170
|
500
|
720
|
|
400
|
950
|
655
|
585
|
535
|
474
|
58
|
16-φ41
|
2290
|
1325
|
550
|
1050
|
|
450
|
1050
|
680
|
610
|
560
|
524
|
60
|
20-φ41
|
2485
|
1465
|
550
|
1320
|
|
500
|
1150
|
755
|
670
|
612
|
576
|
62
|
20-φ48
|
2640
|
1590
|
550
|
1800
|
|
600
|
1350
|
890
|
795
|
730
|
678
|
62
|
20-φ54
|
2940
|
1720
|
600
|
2160
|
文章(zhang)分頁(ye):
1
|
|
|
|
|
|